泄压持压阀由主阀、泄压/持压导阀针阀、球阀、微形过滤器和压力表组成水力控制接管系统。利用水力自动操作,可以作泄压阀用又可作持压阀用。作泄压阀用时,维持供水路压力在设定的安全值之下;做持压阀用,维持主阀上游水压在设定值之上,保持主阀上游供水压力。
1、、当上游压力逐渐上升超过导阀调定 值时,主阀迅速开启泄水降压,直到上游压力降到导阀设定值以下时,主阀才缓慢平稳关闭,并避 免了水锤水击的发生,保证了管线的安全。
2、作泄压阀时,主要用于消除因流量过大需逐渐增大的过 高压力,如消防栓系统的消防初期、自动喷以及各种给水系统的水泵出口处。
3、作持压阀时,主阀安装于主管路上,即与主渠道串联安装。只要主阀上游的供水压力低于导阀设定值时,主阀就处于关闭状态。
4、当主阀上游的供水压力超过导阀设定值时,主阀才会自动打开,向主阀下游供水,从而保证了主阀上游的供水压力。
| 公称压(Mpa) | 壳体试验压力(MPa) | 密封试验压力(MPa) | 适用介质 | 介质温度(℃) |
| 1 | 1.5 | 1.1 | 水 | 0-80 |
| 1.6 | 2.4 | 1.76 | ||
| 2.5 | 3.75 | 2.75 |
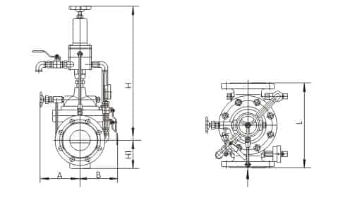
| 公称通径DN | L | H | H1 | A | B |
| 50 | 250 | 505 | 90 | 170 | 170 |
| 65 | 280 | 520 | 98 | 180 | 180 |
| 80 | 310 | 535 | 110 | 190 | 190 |
| 100 | 350 | 555 | 120 | 200 | 200 |
| 125 | 400 | 590 | 145 | 215 | 215 |
| 150 | 450 | 645 | 155 | 230 | 230 |
| 200 | 550 | 715 | 190 | 255 | 255 |
| 250 | 650 | 780 | 250 | 295 | 295 |
| 300 | 800 | 880 | 290 | 325 | 325 |
| 350 | 900 | 940 | 330 | 380 | 380 |
| 400 | 1000 | 1000 | 360 | 415 | 415 |
| 450 | 1000 | 1030 | 445 | 435 | 435 |
| 500 | 1100 | 1060 | 495 | 460 | 460 |
| 600 | 1100 | 1150 | 550 | 520 | 520 |

1、泄压持压阀主阀的最佳安装方式是水平卧式安装,其他安装方式也可达到操作功能。安装前要彻底清除 管道内杂物。要注意主阀体外水流标示箭头,要遵循方向安装。安装后应确没有管路应力作用在 阀体及阀内部件上。
2、主阀前要装一只闸阀和一只过滤器,主阀后要装一只闸阀,以便于维修。
3、泄压持压阀导阀与导管控制系统已于出厂前装配和调整完毕,如导阀出厂设定压力值不适合现场要求, 可作如下调整;先松开导阀手轮下的锁紧螺母,然后顺时针拧动导阀手轮为增加压力,反之为降低压力,调好后锁紧螺母。
4、通水前必须彻底冲洗管路系统。
5、对重要给水管路应安装旁通阀。
6、500X泄压持压阀微型过滤器要定期清洗。
泄压持压阀广泛应用于高层建筑、生活区等供水管网系统及城市供水工程。
上一篇:最后一页